Наши проекты

ШЕН ТАНИК ЖИЛОЙ КОМПЛЕКС

Котайкская область, село Ариндж, Паруйр Севак 17, 23-29 земельный участок

Starting from 440,000 драм

за 1 м²

Поделиться
Застройщик

DAG Constraction

Общая площадь

3,648 м²

Квартиры

269

Parking icon
Автостоянка

136

Calendar icon
Окончание работ

2028-01-01

Основная информация

Компания-застройщик: DAG Construction

Начало строительных работ: начаты

Завершение строительных работ: 2028

Банк: FASTbank

Земельный участок: 3648 кв.м

Зеленая зона: 1460 кв.м

Количество корпусов: 3

Количество этажей: 19

Количество квартир: 269

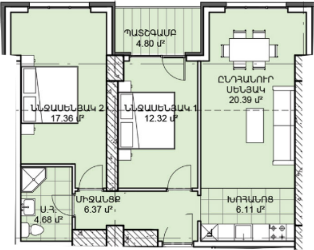
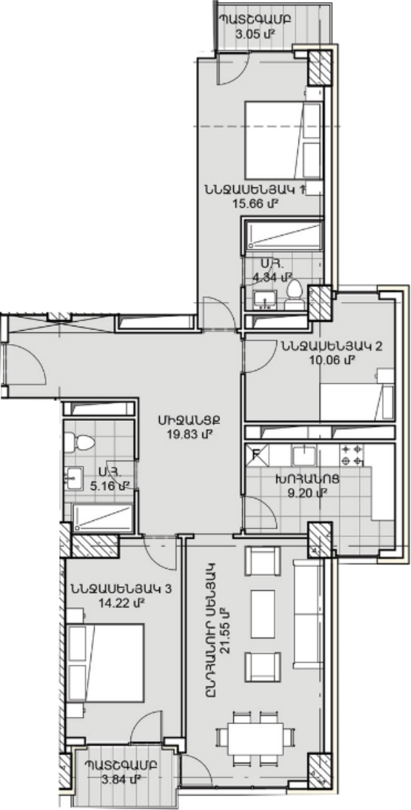
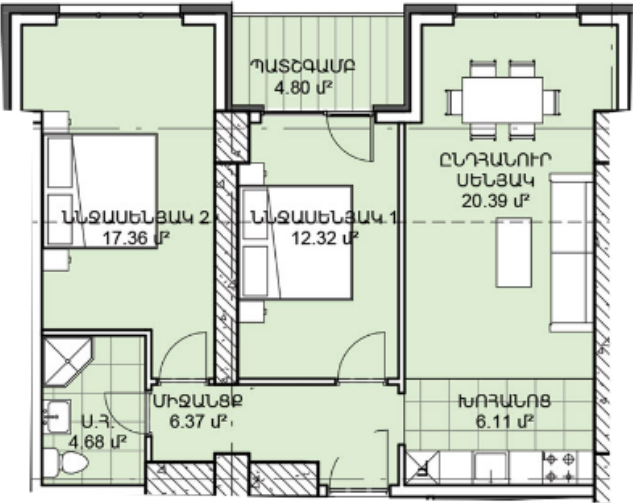
Площадь квартиры: 55 кв.м - 116 кв.м 

Тип жилья:

  • 2 комнаты
  • 3 комнаты
  • комнаты

Парковка: 136

  • -1 - не продается
  • -2 - 10.000.000 драм
  • -3 - 8.000.000 драм
  • -4 - 6.000.000 драм

1 кв. м.начиная с 440.000 драм

Оплата может быть произведена как в кредит, так и поэтапно ( 30% - 50% - 20% )

Есть вопросы?
Свяжитесь с нашим специалистом.

Наименование Здание Этаж Тип Площадь (м²) Цена (1м²) Полная стоимость
Apartment 2
Building 1 2 4+ комнаты 105.38 440,000 46,367,200
Apartment 6
Building 1 2 3 комнаты 94.13 450,000 42,358,500
Apartment 9
Building 1 3 4+ комнаты 106.9 440,000 47,036,000
Apartment 13
Building 1 3 3 комнаты 95.29 450,000 42,880,500
Apartment 29
Building 1 6 3 комнаты 73.03 510,000 37,245,300
Apartment 30
Building 1 6 4+ комнаты 106.9 450,000 48,105,000
Apartment 34
Building 1 6 3 комнаты 95.29 460,000 43,833,400
Apartment 35
Building 1 6 3 комнаты 72.02 510,000 36,730,200
Apartment 36
Building 1 7 3 комнаты 73.03 510,000 37,245,300
Apartment 37
Building 1 7 4+ комнаты 106.9 450,000 48,105,000

113 недвижимость в наличии

Техническая информация

Земельный участок

Зеленая зона

3648 кв.м

1460 кв.м

Адрес

Котайкская область, село Ариндж, Паруйр Севак 17, 23-29 земельный участок

Похожие проекты